案例|恒盛鼎城华公馆——森系的甜美,属于两个人的温馨小窝
2019-01-02
恒盛鼎城华公馆案例
- 现代简约 -
小区名称:恒盛鼎城华公馆
装修类型:新房装修
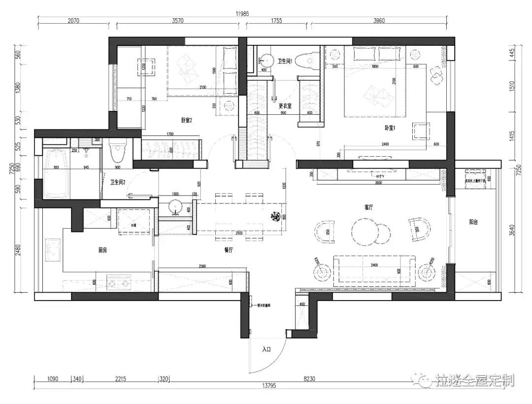
户型面积:85㎡ (两室一厅)
(▲户型图)
(长按图片,识别二维码,查看全景设计)
王先生(化名)与太太刚刚结婚不久。几周前,他们搬进了现在这套婚房。虽然说户型面积不大,但他们一点也不将就。
作为他们即将起航,驶向全新生活旅程的“旗舰”,这里的每个细节都经过了精心的设计。
下面就来详细看看这对新人是怎么样设计自己的新房吧?
玄关 Porch
(▲效果图)
(▲实拍图)
因为是小户型,所以对空间的利用格外重要。玄关柜虽然造型比较简单,但对空间的利用率却很高。
上下两个柜体分别可以当做储物柜和鞋柜,中间的空档可以随手放置一些小物件,十分便捷。
餐厅 Balcony
(▲效果图)
(▲实拍图)
这是一款储物柜,旦看上去十分像护墙板,得益于它没有安装把手,而是采用了自弹器作为开关。
加上整块“挪威木纹”门板上顶天花板,下接木地板,一气呵成,看上去十分完整平齐,确实很像护墙板。
再加上王先生十分喜欢“挪威木纹”的样式,这不,在餐桌上方和沙发背后都用“挪威木纹”做了护墙板。
客厅 Parlour
(▲效果图)
(▲实拍图)
电视柜设计可也是考虑到王先生的生活习惯,一些书籍、游戏机、摆件都需要摆放的空间,
而陶瓷白的门板也是平衡了整体的色调,不至于显得暗沉晦涩。
过道 Aisle
(▲效果图)
(▲实拍图)
因为之前对户型布局进行了一些改动,所以餐厅与厨房相连的地方有一块多余的空间,这时候轮到拉迷定制家具出马,
做了一个与玄关柜类似的简易储物柜。上下两个柜体放置一些杂物,不让空间有丝毫的浪费。
(▲效果图)
(▲实拍图)
厨房中也是做了一个容量十分可观的储物柜,放置一些不用放在冰箱,可以常温存放的物品。

(▲效果图)
(▲实拍图)
书房与主卧本来是相对的,中间夹着一个洗浴间。但是经过王先生的改造,
将中间这个通向洗浴间的小过道改造成了一个小巧的衣帽间,紧挨浴室,以后换洗衣服就方便多了。
(▲效果图)


(▲实拍图)
因为做了衣帽间,主卧不需要再放置衣柜,所以这里的空间就会显得比较大。
放置一个小书桌,临窗再做一个飘窗柜......看看窗外的风景,聊聊生活的趣事,二人世界就是这般悠闲自在。
书房 Study
(▲效果图)
(▲实拍图)
在次卧,也设计了一个书桌+飘窗柜。使得这间屋子近两年可以作为书房使用。等到王先生有了孩子,这里又可以变为孩子的卧室,
平时写作业,父母还可以在一旁的飘窗柜上陪着孩子。这样的设计,让这间屋子至少十年内不用再做改动。
THE END
王先生家的装修风格总体简洁明快。无把手的设计将板材纹理最大化、完整地展示出来;“陶瓷白”+“挪威木纹”,一明一暗,相得益彰。
那么王先生对拉迷又有着什么样的评价呢?一起来看看吧!
(▲拉迷业主采访视频)
想要知道更多关于“产品”或者“案例”的介绍,还可以点击下面文章进行了解。
往期精选
