-
13 2018/12
全新系列|置身暖林,感受阳光下树木的气息——“柏林棕木”
每天生活在都市里的人们,在夜深人静,疲惫不堪时,总会想要回归大自然,感受原始的自由。不再被世俗的欲望所束缚,不再担心手机没电,网络不好。而是真真切切地去享受呼吸,去触摸细腻的叶脉,粗糙的树皮,清澈的溪流......
-
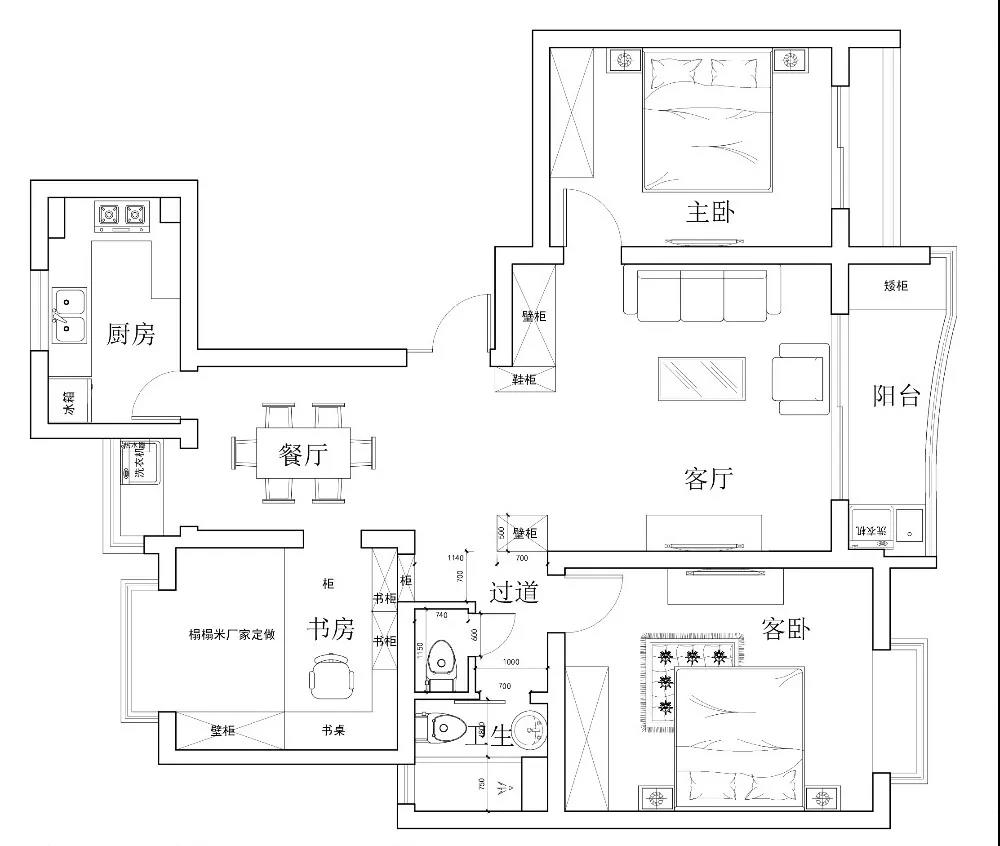
12 2018/12
最美我家”案例|爱家亚洲花园小区——能够自由设计,才是真的全屋定制!
虽然是经人介绍,但张女士第一次在红星美凯龙看到拉迷时,就感受到她与拉迷的契合度超过她的预期。再加上那位朋友对拉迷赞不绝口,这样张女士很是心动,决定试一试。
-
11 2018/12
终篇敲响!2018年最后一期衣柜设计师培训班圆满结束了!
2018年12月2日,拉迷2018年第四期衣柜设计师集训营迎来最后一集——毕业。
